Denah Rumah Minimalis Sederhana 9x12 4 Kamar
Desain rumah 1 lantai 4 kamar tidur.

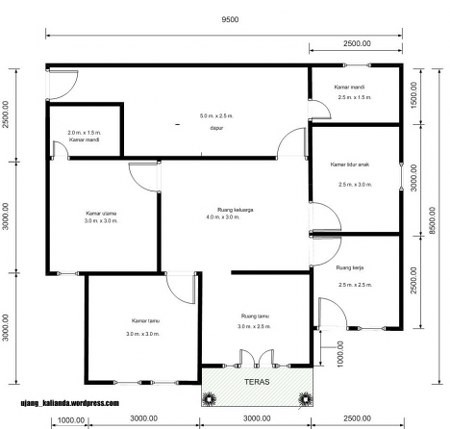
Denah rumah minimalis sederhana 9x12 4 kamar. Idaman memiliki rumah ideal pun seakan menjadi impian yang indah. Sebelumnya kita telah membahas denah rumah sederhana 3 kamar tidur maka hari ini kita akan membahas denah rumah minimalis 4 kamar tidur. Hanya saja pada saat membeli rumah jarang sekali dijumpai model rumah yang terdapat 4 kamar tidur didalamnya. Gambar denah rumah sederhana 4 kamar tidur architecturaldesigns agar ruangan ruangan kamar tidur terlihat lebih luas anda dapat menyiasatinya dengan pemilihan furniture yang tepat.
Nah untuk anda yang berencana membangun rumah mewah yang luas maka membangun 4 kamar tidur tidak ada salahnya. Memiliki sebuah rumah adalah impian dari setiap orang yang telah berkeluarga. Tipe denah ini sangat cocok untuk rumah anda yang memiliki luas yang luas tetapi bingung bagaimana cara menatanya sehingga terlihat rapi dan minimalis.













































.jpg)














































