Denah Rumah Minimalis Leter L
Contoh konsep desain rumah bentuk letter l.

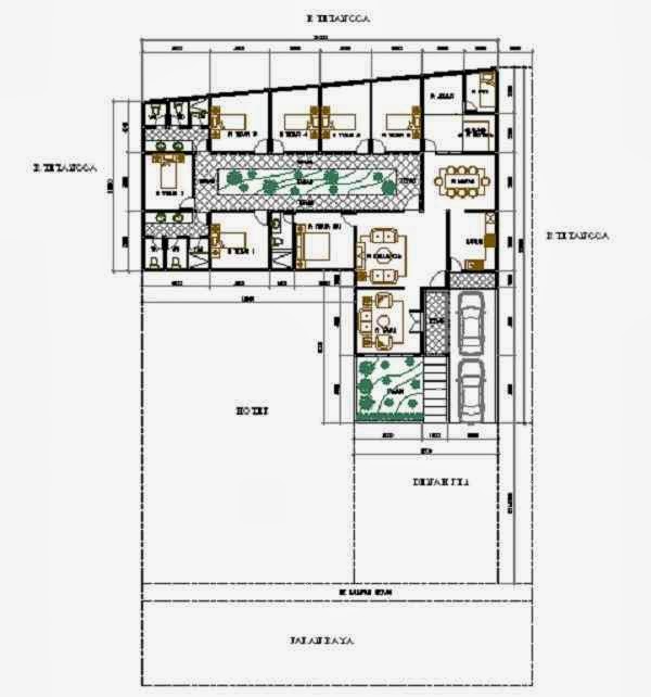
Denah rumah minimalis leter l. Desain rumah minimalis berbentuk l ini dapat menjadi salah satu rumah idaman kita kita dapat membuat 2 pintu masuk. Aktifitas yang kerap dilakukan di dalam hunian adalah tidur. Luas lahan yang luas dengan bentuk yang unik tidak menghalangi anda untuk tetap berkreasi dalam mendesain rumahterdapat 2 wajah rumah dengan 2 carpot sehingga rumah terlihat seolah olah memiliki 2 tampilan depan dengan posisi yang berbeda. Rumah dengan bentuk huruf l akan menyisakan sebuah area yang.
Desain rumah minimalis 5 kamar tidur 2 lantai hunian bagian tempat untuk menikmati kehidupan yang damai tempat untuk tidur serta wadah buat status sosial dalam masyarakat. Selanjutnya tempat tinggal berfungsi buat wadah berinteraksi seama anggota keluarga atau teman entah di dalam maupun di luar hunian. Denah rumah minimalis leter l. Desain rumah minimalis leter l desain rumah minimalis leter l yang menjadi idola saat ini rumah sudah menjadi salah satu favorit hunian buat masyarakat modern karena model yang keren serta juga.
Denah rumah 3 kamar leter l 62 desain rumah minimalis leter l setelah sebelumnya mendesain gambar denah rumah lantai 1 berikutnya kita akan membuat desain gambar denah rumah lantai 2 dalam perencanaan desain rumah lengkap. Pintu masuk samping akan lebih menjaga privasi keluarga kita. Contoh konsep desain rumah bentuk letter l. Pintu masuk utama pada bagian depan sedangkan pintu masuk kedua ada di bagian samping.
Desain rumah dengan lahan 18 x 26 m yang di apit lahan milik orang lain dengan bentuk leter l terlihat jelas ketika dari atas. Rumah bentuk letter l merupakan bentuk rumah yang terlihat seperti huruf l. Desain rumah minimalis leter l selamat pagi sobat yang kami banggakan waktu ini kita akan memberi gambaran tentang desain rumah minimalis leter l.






























































































