Denah Rumah Minimalis Beserta Keterangannya
Mendesain denah ruangan menjadi satu satunya cara untuk mengatur dan menetapkan posisi ruangan ruangan utama di rumah anda.

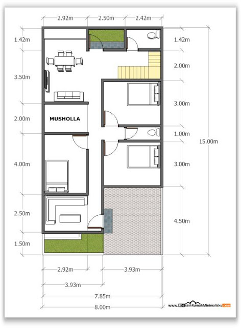
Denah rumah minimalis beserta keterangannya. Selanjutnya hunian berguna sebagai wadah berinteraksi antara anggota keluarga atau sahabat entah di dalam ataupun di luar hunian. Oleh karena itu berikut kami akan berikan beberapa contoh denah rumah minimalis 1 lantai 3 kamar tidur dan garasi. Sehingga denah rumah minimalis sangat mempengaruhi bentuk rumah yang sedang anda bangun. Denah rumah 3 kamar ukuran 7x9.
Denah rumah 3 kamar ukuran 7x9 2 lantai rumah bsd karya dap studio sumber. Gambar denah rumah 3 kamar tidur lengkap dengan keterangannya 10406 setelah sebelumnya kami mebahas tentang denah rumah minimalis 2 lantai dan denah rumah 1 lantai type 36 dan 45 kali ini dirumahku akan membahas denah rumah 3 kamar tidur jadi bagi anda yang sedang mencari denah rumah 3 kamar tidur silahkan simak artikel ini. Jika anda ingin memiliki denah rumah 3 kamar ukuran 7x9 anda bisa. Pada saat ini pembuatan desain rumah tidak cukup hanya sekedar mengira ngira dimana letak kamar tidur.
Aktifitas yang kerap dilaksanakan di dalam tempat tinggal adalah tidur. Contoh denah rumah sederhana baik denah rumah sederhana 1 lantai maupun denah rumah 2 lantai akan membantu para pemilik rumah untuk merencanakan rancangan rumah merekadi beberapa daerah kami lihat kebanyakan rumah masih dibangun dengan desain yang sangat umum oleh karena. Nah pada buku ide kali ini kami akan memberikan beberapa desain rumah yang cantik lengkap beserta denahnya yang semoga. Denah rumah minimalis selamat datang teman teman yang saya senangi hari ini saya akan membahas mengenai tentang denah rumah 3 kamar denah rumah denah rumah sederhana denah rumah 3 kamar gambar denah rumah denah rumah 3 kamar tidur denah rumah sederhana 3 kamar tidur gambar denah rumah denah rumah modern contoh rumah minimalis denah rumah modern minimalis.
Namun jika kita sendiri yang memberikan ide desain rumah dan ruangan tentu menjadi kepuasan tersendiri agar rumah impian sesuai dengan gaya kesukaan kita. Memiliki rumah impian yang nyaman untuk ditinggali tentunya menjadi sebuah kebanggaan dan menjadi dambaan semua orang. 40 contoh denah rumah minimalis beserta ukurannya memiliki rumah nyaman dan bagus adalah impian semua orang untuk itu kami sajikan artikel tentang contoh denah rumah minimalis yang dilengkapi dengan ukurannya sehingga anda dapat menjadikannya sebagai acuan dalam membangun rumah idaman anda.



























































































